Bất kỳ doanh nghiệp sản xuất nào trước khi bước vào hoạt động đều phải xây dựng một hệ thống nhà xưởng. Trong đó việc lên ý tưởng cho bản vẽ nhà xưởng thường do các kiến trúc sư đảm trách. Thế nhưng nếu là người có chút am hiểu về kiến trúc, bạn hãy thử lên mạng tìm kiếm thông tin bản vẽ. Sau đó thay đổi sao cho phù hợp với nhu cầu sử dụng của doanh nghiệp. Nếu không tìm thấy bản thiết kế bằng tiếng Việt ưng ý, bạn hãy tra bằng tiếng Anh, như kiểu nhà xưởng tiếng Anh là gì.
LINK DOWNLOAD GOOGLE DRIVE NHÀ XƯỞNG MẪU: https://drive.google.com/file/d/1yCPzIlxW2JuPCi9GB-Tfl460AB4xgmxF/view
Lý do cần thiết một bản vẽ nhà xưởng
Nhà xưởng đóng một vai trò quan trọng trong chuỗi cung ứng hàng hóa máy của các doanh nghiệp sản xuất. Ngay cả với những doanh nghiệp chuyên về dịch vụ logistic đôi khi cũng phải đi thuê nhà xưởng. Một nhà xưởng được xây dựng bài bản, khoa học sẽ tạo cơ sở để doanh nghiệp có bước đệm phát triển trong tương lai. Nhưng muốn vậy, trước tiên chủ doanh nghiệp cần đầu cho khâu lên ý tưởng bản vẽ.
Giảm thiểu thời gian thi công

Bản vẽ nhà xưởng giúp thiểu thời gian thi công
Nếu chỉ xây dựng một căn nhà nhỏ, bạn có thể không cần đầu tư một bản thiết kế. Thế nhưng trên quy mô phân xưởng sản xuất thì lại hoàn toàn khác. Bởi nhà xưởng thường có diện tích tương đối rộng theo đó là hệ thống máy móc thiết bị chiếu sáng sáng vô cùng quy mô. Trong quá trình xây dựng mà không có một bản thiết kế bài bản, bên thi công chắc chắn sẽ tốn rất nhiều thời gian để xây dựng hoàn chỉnh công trình.
Tuy nhiên khi đã có một bản vẽ nhà xưởng chi tiết, công việc thi công sẽ diễn ra nhanh hơn đáng kể. Bởi chỉ cần nhìn vào bản vẽ nhà người ta có thể xác định nên tiến hành xây dựng hạng mục nào trước. Trong quá trình cần thay đổi thiết kế, bên thi công chỉ cần dựa vào bản thiết kế này để đưa những điều chỉnh phù hợp.
Xem thêm đèn led nhà xưởng – đèn led Highbay giá tốt
Tiết giảm chi phí xây dựng

Bản vẽ nhà xưởng sẽ cho biết tổng hợp diện tích, chiều cao, phân khu của công trình
Nguyên nhân chính dẫn tới tình trạng chi phí xây dựng các công trình bị đội lên do không tính toán chính xác số liệu vật tư xây dựng cần sử dụng. Mà muốn tính toán chuẩn xác nhất lượng vật tư cho một công trình nào đó, bạn cần dựa vào bản vẽ thiết kế. Bản vẽ nhà xưởng sẽ cho biết tổng hợp diện tích, chiều cao, phân khu của công trình. Từ đó giúp chủ xây dựng tính toán một cách tương đối chuẩn xác số lượng vật tư cần dùng cho công trình.
Mô phỏng chính xác không gian của nhà xưởng
Nếu chưa xây dựng hoàn tất, bạn sẽ khó lòng mà tưởng tượng ra sau khi hoàn thành nhà xưởng sẻ có thiết kế như thế nào. Nhưng với một bản vẽ chi tiết mô tả không gian 2D hoặc 3D, bạn sẽ chỉ cần nhìn vào đó. Nhưng cũng đã dễ dàng hình dung một cách chính xác không gian nhà xưởng sau khi xây dựng xong sẽ có không gian hoạt động như thế nào.

Bản vẽ mô phỏng chính xác không gian của nhà xưởng
6 Bản vẽ nhà xưởng cỡ nhỏ được sử dụng nhiều nhất hiện nay
Bản vẽ nhà xưởng tuy chỉ nằm trên một trang giấy nhỏ nhưng lại đến đến rất nhiều lợi ích cho quá trình xây dựng. Nhưng có lẽ không phải bất kỳ ai cũng có thể tự tay tạo ra một bản vẽ chất lượng. Nếu vậy, bản thiết kế nhà xưởng cỡ nhỏ dưới đây sẽ là nguồn tư liệu tham khảo rất hữu dụng cho chủ doanh nghiệp.
Bản vẽ thiết kế nhà xưởng may
Việt Nam trong nhiều năm gần đây luôn nằm trong top những nước có giá trị xuất khẩu hàng may mặc hàng đầu thế giới. Vậy nên cũng không còn gì khó hiểu khi tại nhiều địa phương ngày càng có nhiều nhà máy may được xây dựng.

Bản vẽ nhà xưởng công nghiệp

Bản vẽ thiết kế nhà xưởng may
Để thi công một xưởng may công nghiệp, người ta sẽ dựa vào 3 dạng bản vẽ chính. Bao gồm:
- Bản vẽ thể hiện quy hoạch
- Bản vẽ thể hiện tổng thể kiến trúc
- Bản vẽ thể hiện kết cấu nhà xưởng
Bản vẽ thiết kế nhà xưởng cơ khí

Bản vẽ thiết kế điện nhà xưởng
Bản vẽ nhà xưởng cơ khí cho biết kết cấu của câu trình sau khi hoàn thành. Một phân xưởng cơ khí đòi hỏi cần có một hệ thống máy hàn cắt cực kỳ quy mô. Và kèm theo đó phải là một hệ thống điện lưới có khả năng đáp ứng duy trì hoạt động của nhiều máy móc.

Bản vẽ nhà xưởng khung thép
Tùy vào kinh phí xây dựng, mà bản vẽ thiết kế nhà xưởng cơ khí cũng từ đó mà có sự điều chỉnh phù hợp.
Bản vẽ nhà thép tiền chế 1 tầng

Bản vẽ kết cấu thép nhà xưởng
Bản vẽ nhà thép tiền chế 1 tầng
Nhà xưởng thép tiền chế 1 tầng chắc chắn không ngốn ngân sách như dạng nhà máy 2, 3 tầng. Bản vẽ nhà xưởng 1 tầng chủ yếu cho biết phần khung xây dựng bao gồm những vật liệu nào. Đồng thời dựa vào bản vẽ này bạn còn biết được cách bố trí máy móc, phân khu của từng khu vực sản xuất.
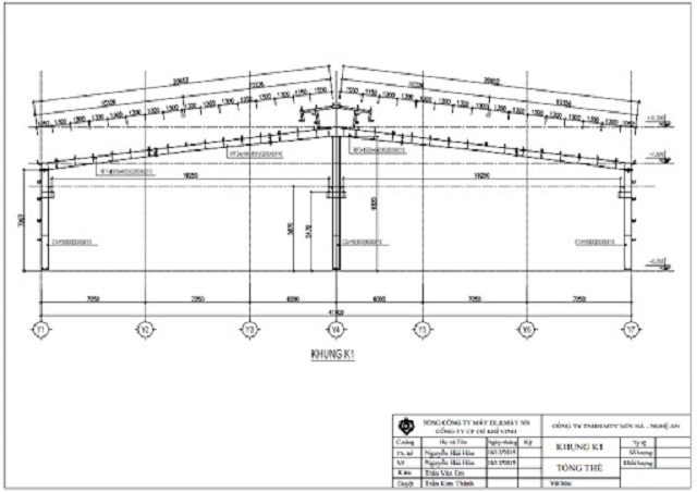
Bản vẽ autocad nhà xưởng có trục

Bản vẽ autocad nhà xưởng có trục

Đây là dạng bản vẽ được xây dựng trên phần mềm CAD thông qua phương pháp tạo vector trong không gian 3D. Vì thực hiện trên phần mềm nên thời gian để hoàn thành một bản vẽ autocad cũng khá nhanh.

Bản vẽ autocad nhà xưởng có trục 2 tầng
Bản vẽ autocad có trực cho biết số đó chi tiết khoảng, cách bố trí thanh trục của bộ khung. Để rồi từ đó, chủ doanh nghiệp tính toán số lượng thiết bị cần bố chính. Và đưa ra điều chỉnh phù hợp với nhu cầu sản xuất sau này của phân xưởng.
Bản vẽ nhà xưởng công nghiệp

Bản vẽ thiết kế nhà xưởng công nghiệp
Bản vẽ nhà xưởng công nghiệp cung cấp rất nhiều thông tin liên quan đến thiết kế của nhà xưởng. Ví dụ như kết cấu bộ khung, kích thước chi tiết của nhà xưởng, tương quan vị trí của nhà xưởng với khu vực xung quanh.

Download bản vẽ cad nhà xưởng công nghiệp
Ngoài ra khi nhìn vào bạn vẽ, bạn còn xác định được hệ thống lưới điện sẽ bố trí như thế nào, vật liệu phù hợp để xây dựng nhà xưởng. Tùy vào từng quy mô sản xuất mà phần bản vẽ nhà xưởng sẽ có sự điều chỉnh sao cho phù hợp nhất. Nhưng dù thay đổi thế nào thì nguyên tắc an toàn trong xây dựng vẫn cần phải coi trọng. Đặc biệt trong quá trình vay vốn ngân hàng, đôi khi bên cho vay vốn cũng yêu cầu được xem bản thiết kế này.
Bản vẽ nhà xưởng đơn giản
Bản vẽ nhà xưởng đơn giản

Bản vẽ thiết kế nhà xưởng

Loại bản vẽ này phù hợp với phân xưởng vừa và nhỏ, yêu cầu thiết kế không quá phức tạp. Bản vẽ này thể hiện chủ yếu kết cấu, kích thước của phần móng và chi tiết ở phần khung.
Lưu ý cần biết khi thiết kế nhà xưởng cỡ nhỏ
Xây dựng một nhà xưởng từ khi đào móng cho đến khi hoàn tất đòi hỏi bên thuê và bên thi công cần có sự thống nhất. Từ khâu thiết kế, lựa chọn nguyên vật liệu cho đến cách thức thi công sao cho an toàn và nhanh chóng nhất.

Lưu ý cần biết khi thiết kế nhà xưởng cỡ nhỏ
- Hiểu rõ nhà xưởng cần vật liệu thì công gì: Mỗi công trình nhà xưởng lại có thiết kế riêng. Do đó yêu cầu về vật liệu cũng không hoàn toàn giống nhau. Số lượng vật liệu cần tính toán dựa theo bản thiết kế.
- Dự trù chi phí phát sinh: Trong quá trình xây dựng nhà xưởng, chắc chắn không thể tránh khỏi sự phát sinh chi phí do sự biến động của thị trường. Vậy nên hãy chuẩn bị sẵn một khoản dự trù kinh phí.
- Luôn đặt an toàn lao động lên hàng đầu: Cần tổ chức tập huấn cho công nhân đồng thời đầu tư hệ thống máy móc, đồ bảo hộ.
- Lưu ý khi bố trí hệ thống chiếu sáng: Số lượng bóng đèn cần tính toán kỹ lưỡng theo nhu cầu sử dụng. Bên cạnh đó hệ thống lưới điện cần đảm bảo cung ứng đủ cho hệ thống đèn chiếu sáng.
Bản vẽ nhà xưởng là cơ sở quan trọng phục vụ quá trình xây dựng của các doanh nghiệp. Mong rằng với một vài tư liệu mà bài viết vừa cung cấp cho bạn nguồn thông tin bổ ích.
CỬA HÀNG ĐÈN LED SKYLED
XEM THÊM: Đèn led âm trần giá tốt tại đây
LINK DOWNLOAD GOOGLE DRIVE NHÀ XƯỞNG MẪU: https://drive.google.com/file/d/1yCPzIlxW2JuPCi9GB-Tfl460AB4xgmxF/view







